Beitrag von Martin Veltum
Mit einer symbolträchtigen Zeremonie wurde der Grundstein für das neue SenVital-Seniorenzentrum in Schenklengsfeld gelegt.
Das Projekt im hessischen Landkreis Hersfeld-Rotenburg vereint moderne Architektur im Landhausstil mit nachhaltiger Bauweise und innovativen Wohnkonzepten für Seniorinnen und Senioren.
Innovative Partnerschaft setzt neue Standards
Das Bauvorhaben entsteht aus einer strategischen Partnerschaft zwischen der exsos GmbH, spezialisiert auf die Entwicklung und Bau nachhaltiger Pflegeimmobilien, und Victor's SenVital, einem der größten privaten Pflegeunternehmen Deutschlands.
Thoralf Bäring, Geschäftsführer der exsos GmbH, betonte in seiner Grundsteinrede: „Mit über 38 Jahren Erfahrung in der Entwicklung von Pflegeimmobilien haben wir uns bewusst für den ländlichen Raum entschieden, um der Unterversorgung an Pflegeplätzen entgegenzuwirken.
Unsere Gebäude in Massivholzbauweise erfüllen höchste Nachhaltigkeitsansprüche und werden mit dem DGNB-Gold-Standard zertifiziert.“
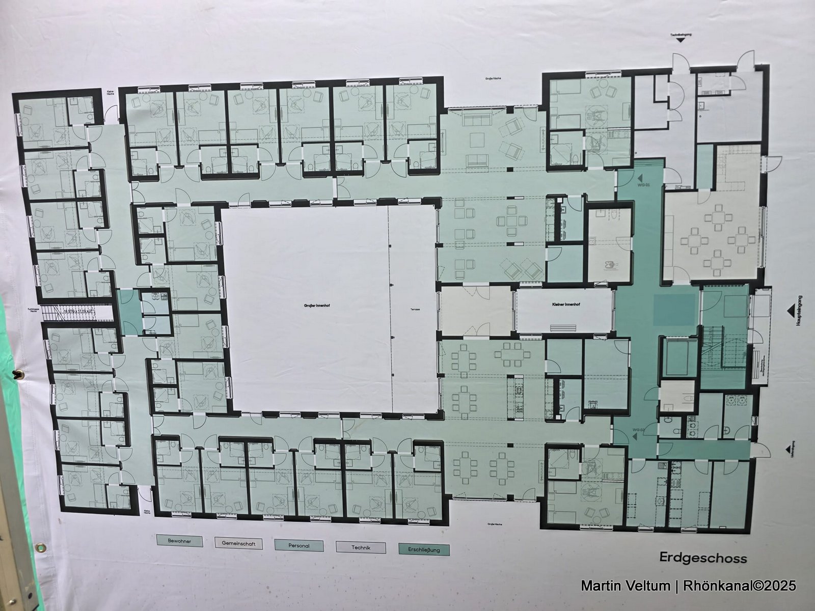
Zwei Gebäude, vielseitige Wohnkonzepte
Auf dem Grundstück an der Weimarer Straße entstehen zwei Gebäude mit unterschiedlichen Nutzungskonzepten, die Anfang 2027 eröffnet werden sollen.
Gebäude 1 umfasst vier Senioren-Wohngemeinschaften mit insgesamt 48 Plätzen für betreutes Wohnen mit ambulanter Versorgung sowie vier Apartments ohne Pflegeanbindung.
Gebäude 2 bietet 16 barrierefreie Ein- bis Drei-Zimmer-Apartments für das Servicewohnen.
Andy Barge, Geschäftsführer von SenVital, erläuterte den Markenswitch: „Wir führen dieses Haus bewusst unter der Marke SenVital, um Synergien mit unserem bestehenden Standort in Philippsthal zu nutzen. Damit schaffen wir im Landkreis ein breites Angebot – von der vollstationären Pflege bis hin zu betreutem Wohnen und Servicewohnen.“
Nachhaltigkeit als Leitprinzip
Das Projekt überzeugt durch eine umfassende Nachhaltigkeitsstrategie.
„In unseren DGNB-zertifizierten Gebäuden verbauen wir über 1.000 m³ Holz aus nachhaltiger Forstwirtschaft“, erklärte Bäring.
„Die Massivholzbauweise, kombiniert mit PV-Anlagen und Wärmepumpen, verringert den ökologischen Fußabdruck und macht unsere Gebäude CO2-neutral.“
Wirtschaftliche Impulse für die Region
Neben einer deutlichen Verbesserung der pflegerischen Infrastruktur bringt das Seniorenzentrum auch wirtschaftliche Vorteile für Schenklengsfeld.
Bürgermeister Andre Wenzel betonte: „Dieses Projekt schafft wertvolle Arbeits- und Ausbildungsplätze in Pflege, Betreuung, Hauswirtschaft und Verwaltung – sowohl in Vollzeit als auch in Teilzeit.“
Er dankte allen Beteiligten für die gute Zusammenarbeit und erinnerte: „Vor gerade einmal einem halben Jahr fand hier der erste Spatenstich statt – und nun ist das Bauprojekt schon so weit vorangeschritten.“
Auch der Landrat des Landkreises Hersfeld-Rotenburg, Torsten Warnecke (SPD), richtete Grußworte an die zahlreichen Gäste.
Pfarrerin Marie-Therese Eckardt würdigte den generationsübergreifenden Ansatz: „Das Haus soll ein Ort der Begegnung für alle Generationen sein – ein Ort, an dem Glaube, Liebe und Hoffnung das Gemeindeleben stärken.“
Gemeinsam mit Kindern der örtlichen Kindertagesstätten „Pusteblume“ und „Spielstunde“ gestaltete sie eine feierliche Segensandacht mit musikalischem Rahmenprogramm.
Investitionsmöglichkeiten und Fachkräftegewinnung
Bei einer Baustellenbegehung informierte Dirk Hildebrandt über den aktuellen Bautenstand und das innovative Gesamtkonzept.
„Für private Investoren bieten sich Kaufoptionen für einzelne Wohneinheiten mit bevorzugtem Belegungsrecht in allen Victor’s-Einrichtungen in Deutschland“, erklärte der Unternehmenskommunikationsleiter der exsos GmbH (weitere Informationen unter www.lokal-investieren.de).
Für die Personalgewinnung setzt Victor’s auf eigene Pflegefachschulen und profitiert von der Attraktivität der modernen, familiär gestalteten Einrichtungen.
Die Grundsteinlegung wurde durch symbolische Handabdrücke auf einer Holztafel sowie das Befüllen von Kupferhülsen begleitet. Ein gemeinsames Foto der Rednerinnen und Redner sowie ein anschließender Empfang bildeten den Abschluss der Veranstaltung.


























































